Котел на древесных отходах 0.15 МВт в Кокшетау

На древесных отходах котел 0.15 МВт
Котел на древесных отходах 0.15 МВт
Чертеж котла на древесных отходах 0.15 МВт
Котел на древесных отходах 0.15 МВт чертеж
Котлы на отходах деревообработки 0.15 МВт
Котел на отходах деревообработки 0.15 МВт
Котлы для сжигания отходов 0.15 МВт
Котел для сжигания отходов 0.15 МВт
Котел на отходах лесопиления твердотопливный 0.15 МВт
Твердотопливный котел на отходах лесопиления 0.15 МВт
Шибер газохода котла 0.15 МВт на древесных отходах
Шибер газохода котла на древесных отходах 0.15 МВт
Котлы на отходах 0.15 МВт
Котел на отходах 0.15 МВт
Котел на древесных отходах 0.15 МВт подовая топка
Подовая топка котла для сжигания древесных отходов 0.15 МВт
Чертеж фундамента для котла на древесине 0.15 МВт
Фундамент для котла на древесине 0.15 МВт чертеж
На древесных отходах котел 0.15 МВт
Чертеж котла на древесных отходах 0.15 МВт
Котлы на отходах деревообработки 0.15 МВт
Котлы для сжигания отходов 0.15 МВт
Котел на отходах лесопиления твердотопливный 0.15 МВт
Шибер газохода котла 0.15 МВт на древесных отходах
Котлы на отходах 0.15 МВт
Котел на древесных отходах 0.15 МВт подовая топка
Чертеж фундамента для котла на древесине 0.15 МВт
Цена
3 052 800 ₸
От 3 052 800 ₸ с доставкой до г.
  • Котел работает на древесных отходах естественной влажности - дровах, щепе, коре, стружке, опилках, досках, поддонах, отходах мебельного производства, ДСП
  • Большой объем топочной камеры
  • Полное догорание топлива

Технические характеристики котла на древесных отходах 0.15 МВт

МаркаКотел КВ Д 0.15
ВидВодогрейный
Тип отопительного котлаТвердотопливный
БрендHEATEXPERT
ТипКотел КВ Д ПТ
Вид топкиРучная, Подовая
Максимальная тепловая мощность0.15 МВт
Максимальная тепловая мощность150 кВт
Максимальная тепловая мощность0.13 Гкал
Диапазон регулирования мощности50-100 %
ТопливоТвердое, Дрова, Древесные отходы естественной влажности
Низшая теплота сгорания проектного топлива2440 кКал/кг
Влажность топлива40 %
КПД котла на ДРОВАХ, не меннее80 %
Расход ДРОВ среднечасовой за отопительный сезон37.3 кг/ч
Расход ДРОВ среднечасовой за отопительный сезон0.08 м³/ч
Расход ДРОВ при максимальной нагрузке котла65 кг/ч
Расход ДРОВ при максимальной нагрузке котла0.14 м³/ч
Расход условного топлива23 кг/ч
Минимальная температура воды на входе в котел55 °С
Максимальная температура воды на выходе из котла115 °С
Давление воды, не более0.3-0.6 (3-6) МПа (кгс/см²)
Номинальный расход теплоносителя5 м³/ч
Расход теплоносителя через котел min-max4-6 м³/ч
Гидравлическое сопротивление при номинальном расходене более 0.07 (0.7) МПа (кгс/см²)
Аэродинамическое сопротивление50 (5) Па (мм. вод. ст.)
Разряжение в топочной камере20-40 (2-4) Па (мм. вод. ст.)
Объем уходящих газов720 м³/ч
Температура уходящих газов220 °С
ТягаУравновешенная
Водяной объем котла250 л
Объем топочной камеры0.91 м³
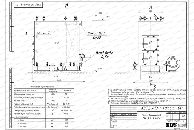
Размер топочной камеры, длина*ширина*высота930х700х1400 мм
Активная площадь решетки горения0.21 м²
Присоединительные размеры по водяному тракту50 Ду
Присоединительные размеры газохода уходящих газов, ширина*высота / сечение175х175 / 0.03 мм/м²
Габаритные размеры котла, длина*ширина*высота1820х1200х1900 мм
Масса1050 кг
Конструкция котлаВодотрубная
Количество контуровОдноконтурный
РазмещениеНапольный
Тип камеры сгоранияОткрытый
УправлениеЭлектронное
Принцип работы твердотопливного котлаКлассический
ЭнергонезависимыйНет
Тип питанияТрехфазное
Встроенный циркуляционный насосНет
Встроенный расширительный бакНет
Отапливаемая площадьот 860 до 1600 м²
Отапливаемый объемот 2600 до 5000 м³
ЭнергоэффективностьВысокая

Котел 0.15 МВт на древесных отходах в Кокшетау

Водогрейный твердотопливный котел на древесных отходах 0.15 МВт предназначен для работы на сырых и влажных дровах, бревнах, поленьях, горбыле, щепе, коре, стружке, опилках, досках, поддонах, ДСП.

Котел наиболее актуален для предприятий деревообработки, лесопилок, пилорам, лесхозов, мебельного производства. При помощи данной модели Вы решаете проблему с утилизацией отходов производства, при этом значительно экономите на отоплении.

Котел 0.15 МВт на отходах деревообработки устройство

Промышленный отопительный котел 0,15 МВт на древесине состоит из котельного блока и ручной подовой топки.

Котельный блок имеет гладкотрубную, газоплотную конструкцию с теплоизоляцией, обшитую декоративными стальными листами. Топка с двумя большими загрузочными дверками расположена в передней части котлоагрегата. В задней части установлен двухходовой конвективный пакет. Чистка конвективных пакетов производится через люк.

Топочная часть

Производственный котел утилизатор древесных отходов мощностью 0 15 МВт изготавливается с подовой топкой, выполненной из огнеупорного кирпича. Футеровка обеспечивает высокую температуру в топочной камере и лучший теплосъем. Большой объем топочной камеры позволяет загружать крупногабаритные отходы лесопиления в большом количестве. Котел может применяться для сжигания влажного топлива. Пояс зажигания обеспечивает сушку сырой древесины. Система воздуховодов распределяет подачу воздуха на первичную и вторичную, а также выполняет функцию подогрева. Легкие и мелкие частицы, захватываемые потоком уходящих газов, догорают в поворотной камере, расположенной на выходе из топки.

Для удобного выгребания золы из топки в футеровку врезан лючок.

Конвективная часть

Конвективная поверхность стального водонагревательного котла 0,15 МВт для сжигания древесных отходов выполнена из труб расположенных в шахматном порядке. Это обеспечивает значительную нагревательную площадь, более полное омывание труб горячими газами и высокий коэффициент передачи тепла. В результате горячие дымовые газы подвергаются охлаждению до 200-180 °С.

Гидравлическая схема котла

Конструкция водяного котла 0.15 МВт на отходах лесопиления предполагает минимальные требования к водоподготовке. Скорость движения воды в трубах вызывает турбулизацию водного потока, что препятствует отложению солей и образованию накипи на стенках труб. Многочисленные перегородки в коллекторах котла не допускают образование застойных зон, возникновение теплового напряжения в трубах и перегрев.

Принцип работы котла 0.15 МВт на древесных отходах

Плотным слоем топливо укладывается на под топки. Розжиг производится сверху и постепенно огонь опускается вниз, обеспечивая равномерное горение. Первичный воздух из зоны горения перемещается к задней стенке топки, образуя небольшое количество золы. Вторичный воздух подается с большой скоростью для дожига топливных частиц. Топливо находится в топке до полного выгорания.

Комплект поставки

Цена на котел 0.15 МВт на древесных отходах включает базовую комплектацию. В состав базовой комплектации входит: вентилятор поддува, затворы, предохранительные клапаны, вентили, манометры, термометры, трехходовые краны.

Дополнительная комплектация

  • автоматика – обеспечивает управление и безопасность котла;
  • дымосос – создает разряжение в котле и исключает попадание дыма в помещение;
  • циркуляционный насос - обеспечивает циркуляцию воды в котлоагрегате;
  • подпиточный насос – позволяет пополнять объем теплоносителя в контуре.

Купить котел 0.15 МВт на древесных отходах

Для того чтобы купить котел 0.15 МВт на отходах деревообработки в Кокшетау вы можете сделать заявку по телефону +7-7172-69-59-73, либо оформить заявку онлайн. Менеджеры дадут консультацию по подбору вспомогательного оборудования для выбранных вами моделей и рассчитают стоимость доставки. Транспортирование котлоагрегата и вспомогательного оборудования до объекта осуществляется автомобильным транспортом.

Комплект поставки котла на древесных отходах 0.15 МВт

Вентилятор
Вентилятор 2 с дв. 1,5/3000
1 штука
Затвор ДУ 50
Затвор Ду 50
2 штуки
Клапан обратный
Клапан обратный
1 штука
Манометр МП 160
Манометр МП 160
2 штуки
Кран трехходовой ДУ 15
Кран Ду 15
2 штуки
Термометр ТТЖО
Термометр ТТЖО
2 штуки
Оправа термометра ОПТ
Оправа ОПТ
2 штуки
Вентиль Ду 15
Вентиль Ду 15
5 штук
Вентиль Ду 20
Вентиль Ду 20
10 штук

Вспомогательное оборудование для работы котла на древесных отходах 0.15 МВт

Насос К консольный
К 50-32-125
Цена 283 656 тг.
Насос К консольный
К 50-32-125а
Цена 279 204 тг.
Насос TD
Насос TD32-33G2 (3 кВт)
Цена 788 640 тг.
Насос CHL
Насос CHL2-40 (0.55 кВт)
Цена 368 880 тг.
Дымосос ДН 3.5
Цена 355 524 тг.

Аналоги котла на древесных отходах 0.15 МВт

Котел 0.15 МВт дрова уголь
Котел 0.15 МВт уголь дрова
Вид топкиРучная, Колосники, ОУР
Максимальная тепловая мощность, МВт0.15
ТопливоТвердое, Уголь, Дрова
Отапливаемая площадь, м²от 860 до 1600
Цена 2 308 680 тг.
На опилках котел 0.15 МВт
Котел на опилках 0.15 МВт
Вид топкиВихревая, Автоматическая
Максимальная тепловая мощность, МВт0.15
ТопливоТвердое, Опилки
Отапливаемая площадь, м²от 860 до 1600
Цена 8 344 320 тг.
На древесных отходах котел 0.2 МВт
Котел на древесных отходах 0.2 МВт
Вид топкиРучная, Подовая
Максимальная тепловая мощность, МВт0.2
ТопливоТвердое, Дрова, Древесные отходы естественной влажности
Отапливаемая площадь, м²от 1200 до 2200
Цена 3 103 680 тг.
На древесных отходах котел 0.25 МВт
Котел на древесных отходах 0.25 МВт
Вид топкиРучная, Подовая
Максимальная тепловая мощность, МВт0.25
ТопливоТвердое, Дрова, Древесные отходы естественной влажности
Отапливаемая площадь, м²от 1500 до 2600
Цена 3 103 680 тг.

Сертификат и качество котла на древесных отходах 0.15 МВт

Сертификат на водогрейные котлы на твердом и жидком топливе
Сертификат на водогрейные котлы на твердом топливе

Собственное производство

Котельный завод производит
  • Паровые котлы от 300 кг до 2.5 тонны пара в час
  • Промышленные водогрейные котлы от 150 КВт до 4 МВт на всех видах топлива
  • Механические топки ТШПМ, шурующая планка и ТЛПХ, ленточное полотно прямого хода
  • Циклоны для очистки воздуха и дымовых газов для производств и промышленных отраслей
  • Транспортеры и системы топливоподачи и шлакоудаления
Подробнее о производстве
Собственное производство
Смотреть видео
с производства